Pareksh Associates - Architectural & Interior Design Consultancy

  • ARCHITECTURE
  • INTERIOR
  • EVENTS & EXHIBITIONS
  • DESIGN PROCESS
  • ABOUT US
  • CONTACT
  • Sthapati Designers & Consultants Pvt. Ltd.
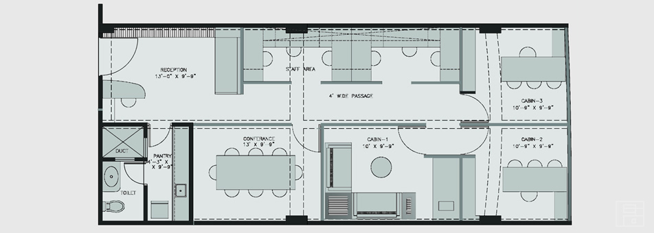
  • Lallooji & Sons Office

    LocationAhmedabad, Gujarat

    Site Area103 m2

    Floor Area103 m2

    Building TypeOffice Interior

ABOUT US CAREER HOME

All material appearing on this website is either the sole property of Parekh Associates and/or their project associate/partners. For all other uses, individuals and/or organizations must seek Parekh Associates prior written permission to use or reproduce any such material.

© parekhassociates.in, 2016. All right reserved.

Developed by: AntiAlias.in